Domy

Návrhem vlastního vnitřního uspořádání domu podle vašich skutečných potřeb a představ ovlivníte spokojenost celé rodiny i optimální cenu za svůj nový domov.
Pro inspiraci můžete vycházet např. ze 4 nejčastějších dispozic bydlení :
- 5 + kk pro rodiny s více dětmi či s domácí kanceláří, apod.
- 4 + kk např. pro rodiny s dětmi
- 2 + kk + kancelář oddělené podnikání (kanceláře) od soukromé části domu
- dvougenerační bydlení

Vzorový dům
|
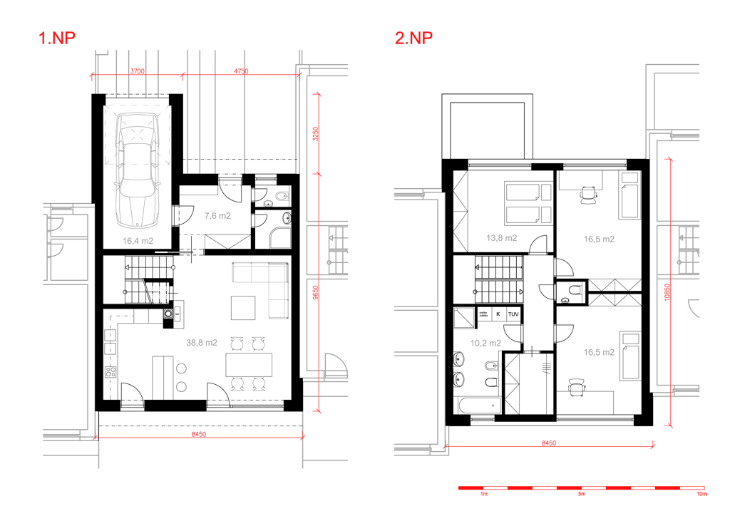
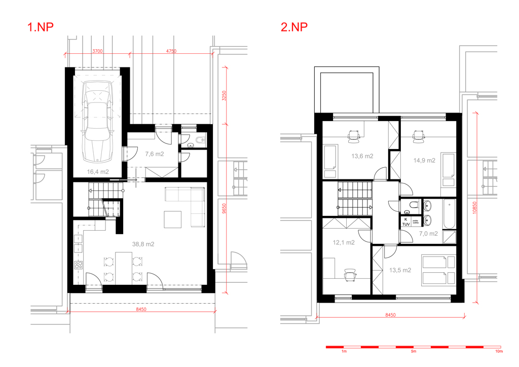
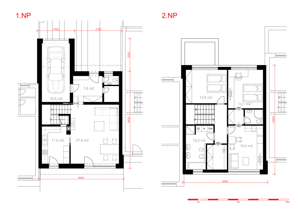
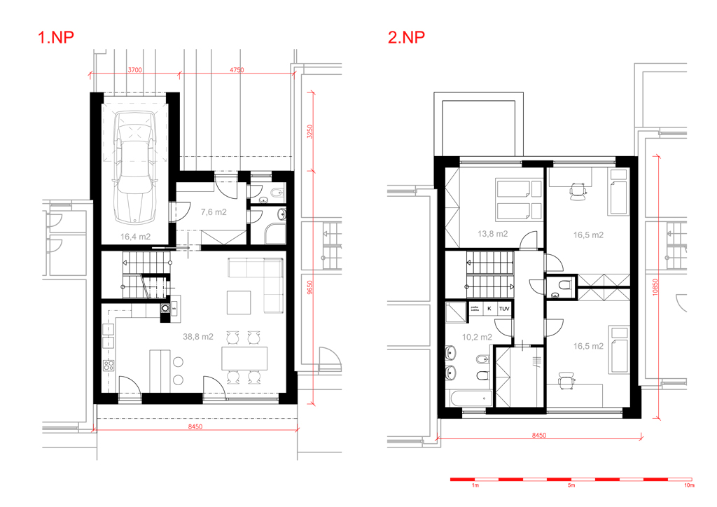
Vzorový dům byl dispozičně upraven tak, aby splňoval požadavky mladé rodiny s malými dětmi. Počet obytých pokojů byl upřednostněn před jejich velikostí. V přízemí se nacházejí všechny místnosti důležité pro denní provoz. Z prostorného zádveří je přímý vstup do garáže, na WC, do komory a do obývacího pokoje. Prostorný obývací pokoj je oddělen od kuchyňského koutu designově minimalistickým barovým pultem z Lacobelu, stejný materiál se opakuje u obložení mezi spodními a závěsnými skříňkami kuchyňské linky. Velmi prakticky je využit i prostor pod schodištěm, který slouží jako spíž přímo přístupná z kuchyně. |
|
|
|
V 2. podlaží vzorového domu se nacházejí 4 pokoje, z nichž nejmenší půdorysnou plochu zaujímá ložnice rodičů, na úkor větších pokojů pro děti. V podlaží se dále nachází šatna, která zároveň plní funkci prádelny a sušárny. Dále tu nalezneme prostornou koupelnu s vanou i sprchovým koutem a samostané WC, které ve vzorovém domě plní i funkci technické místnosti. Je zde umístěn plynový stacionární kotel se zásobníkem TUV. Prostorná venkovní terasa je přístupná z obývacího pokoje i kuchyně. V zadní části zahrady bude ještě zhotoven zahradní domek s pergolou. |
Lokalita Červený Mlýn (6 fotek)
Varianty půdorysu (4 fotky)
Interiér vzorového domu (11 fotek)
Aktuality
Kontaktujte nás
mob.: 602 13 16 19tel.: 227 157 101
fax: 227 157 105
e-mail: prodej@cerveny-mlyn.eu
www: www.cerveny-mlyn.eu

















